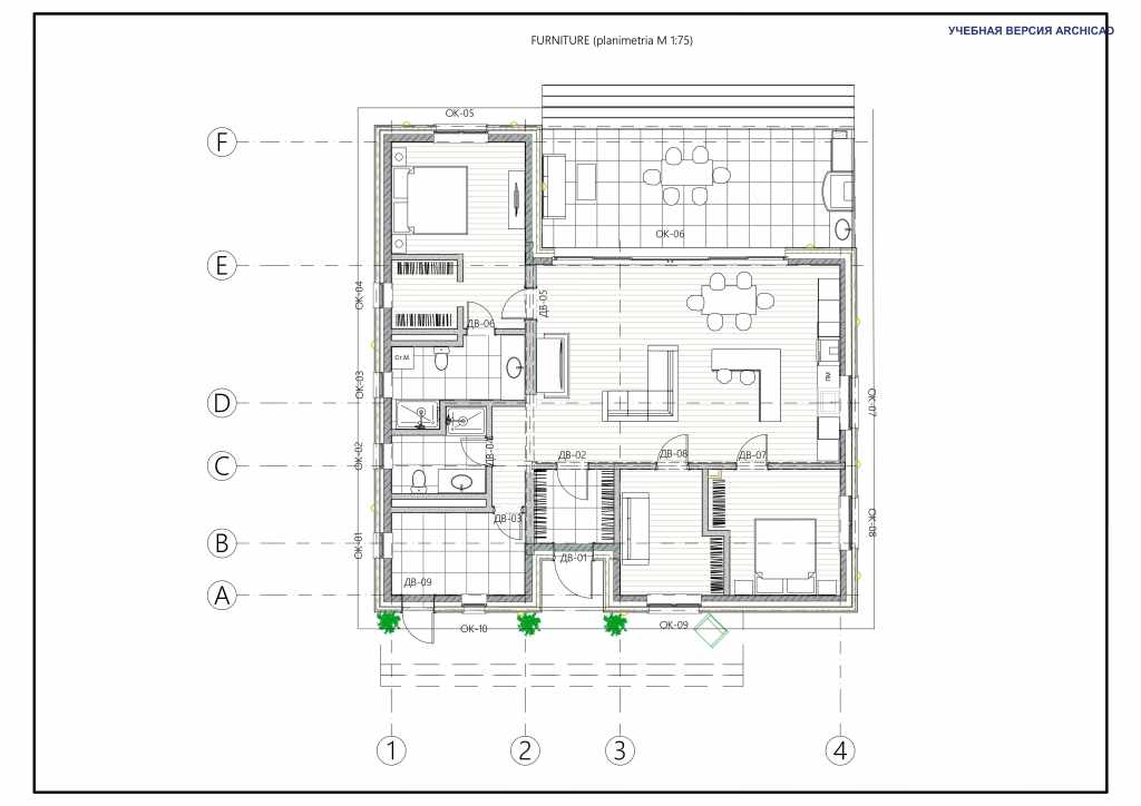
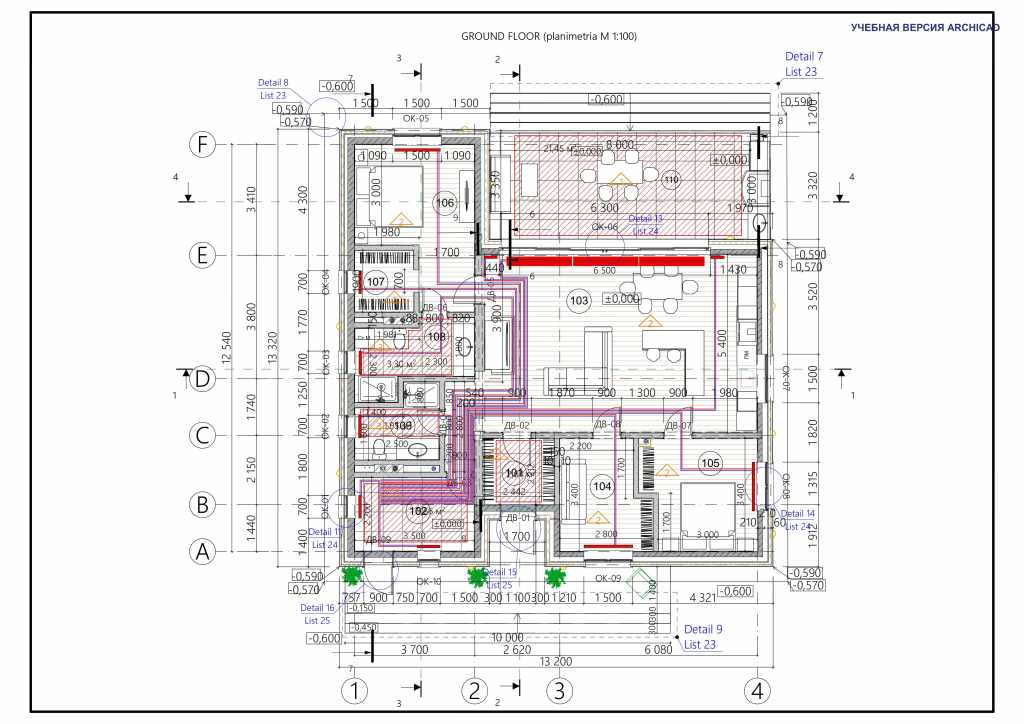
A single-story house with a flat roof is designed for a family of two, featuring two guest bedrooms and a shared kitchen-living room in a cottage village in Montenegro. The goal was to create the most comfortable house that would blend seamlessly with the overall style.
The facade is made of decorative plaster (ventilated facade), wall insulation meets the climate requirements of the house’s location and designed to provide maximum comfort for a family of 2-3 people with another guest room.
House area – 185 sq.m.
3 bedrooms, 2 bathrooms, 1 kitchen and living-room
25 sq.m. terrace with BBQ
Plot area – 1000 sq.m.









